- 18196 Kavelstorf
- Grundstück 2.780,0 m²
- Objektnummer 822
Objektbeschreibung
Objekttitel
Gewerbegrundstück (3.140m2) im Autobahnkreuz A19 und A20, Lagerhalle, Bürofläche
Lage
Der Gewerbestandort Kavelsdorf befindet sich im unmittelbaren Bereich des Autobahnkreuzes der Bundesautobahnen A20 und A19. Dadurch besteht eine direkte Anbindung an das überregionale Autobahnnetz.
Die Hansestadt Rostock ist in kurzer Fahrzeit erreichbar. Über den Hafen Rostock bestehen Fährverbindungen in Richtung Skandinavien und Osteuropa.
Das Umfeld ist überwiegend gewerblich geprägt. Ansässig sind insbesondere Speditions-, Logistik- und Entsorgungsunternehmen. Ergänzend sind gewerbliche Fachhandels- und Dienstleistungsbetriebe vorhanden, unter anderem aus den Bereichen Fahrzeugtechnik, Elektrotechnik und technische Dienstleistungen.
Objektbeschreibung
Gewerbegrundstück mit einer Fläche von ca. 2.780 m², bebaut mit einer Hallenanlage einschließlich Lager- sowie Verwaltungs- und Sozialflächen. Die Grundstücksfreiflächen sind überwiegend gepflastert.
Die Bebauung wurde im Jahr 1995 errichtet. Die Gründung erfolgte über Einzel- und Streifenfundamente. Die Außenwände der Halle sind als Sandwichpaneele mit kunststoffbeschichteten Oberflächen ausgeführt. Die inneren Trennwände im Büro- und Sozialbereich bestehen aus Kalksandsteinmauerwerk.
Das Dach der Halle ist als Satteldach ausgebildet und mit kunststoffbeschichteten Sandwich-Dachelementen eingedeckt. Die Fenster sind zweifach isolierverglast. In den Bürobereichen sind abgehängte Akustikdecken vorhanden.
Die bebaute Fläche beträgt ca. 386 m².
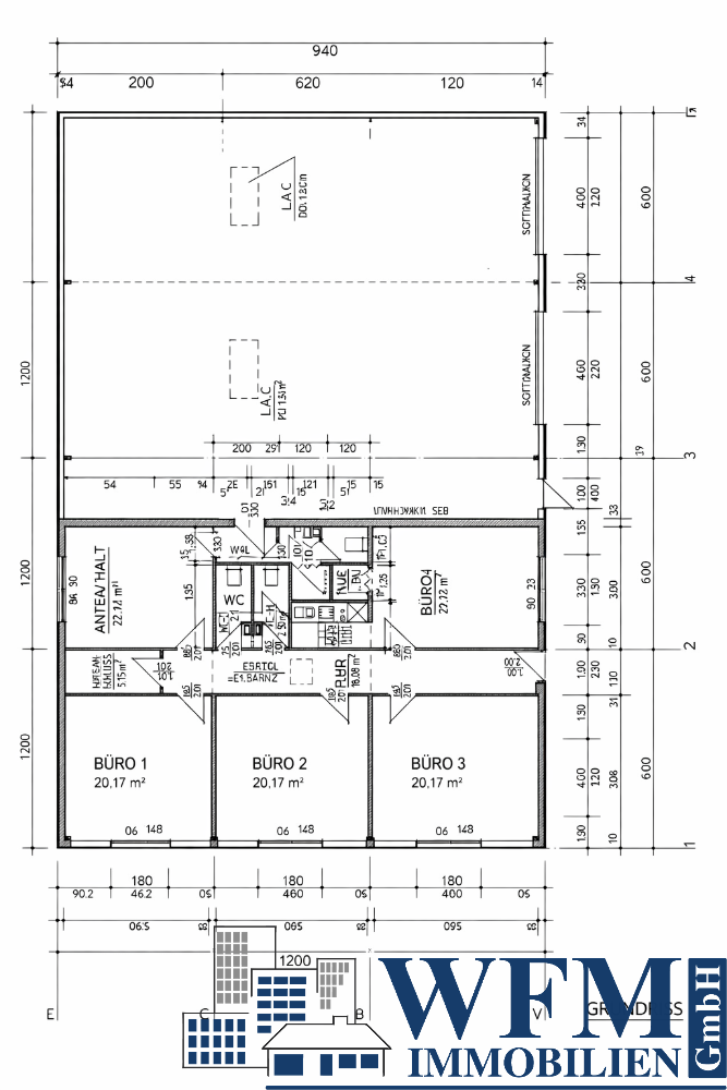
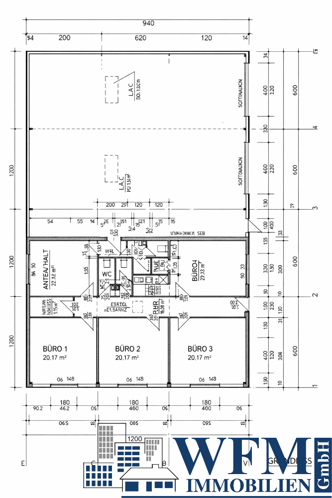
Büro-, Verwaltungs- und Sozialflächen
Der Büro-, Verwaltungs- und Sozialbereich umfasst insgesamt ca. 150 m². Enthalten sind vier Büroräume, ein Aufenthaltsraum, Teeküche, Duschen, WC-Anlagen, Flurflächen sowie ein Hausanschlussraum.
Flächenaufstellung:
Büro 1: ca. 22 m²
Büro 2: ca. 20 m²
Büro 3: ca. 22 m²
Büro 4: ca. 20 m²
Aufenthaltsraum: ca. 20 m²
Es sind insgesamt drei WC-Anlagen vorhanden.
Derzeit ist das Objekt für monatlich 1.452,-€ netto zzgl. Ust. sowie Betriebskosten von rd. 300,-€ langjährig vermietet.
Für weitere Informationen stehen wir Ihnen gerne vor Ort persönlich zur Verfügung.
Bei Zustandekommen eines Kaufvertrages wird eine 3,57% Käuferprovision vom Kaufpreis inkl. MwSt. von 19% verdient und fällig.
Sonstige_angaben
Alle tatsächlichen und rechtlichen Angaben in diesem Exposé sind mit größtmöglicher Sorgfalt zusammengestellt worden. Die genannten Daten erheben keinen Anspruch auf Vollständigkeit. Unser Angebot ist freibleibend und unverbindlich. Sämtliche Objektdaten stammen vom Eigentümer. Das gilt insbesondere für die vom Eigentümer übermittelten Angaben zu Flächen, Rauminhalten, Mieten und sonstigen Wert bestimmenden Faktoren. WFM Immobilienservice hat diese Daten nicht überprüft. Der Eigentümer behält sich die Entscheidung vor, ob, wann, an wen, und zu welchen Bedingungen das Objekt vermietet wird.
Einen individuellen Besichtigungstermin können wir gern telefonisch vereinbaren.
Für Fragen stehen wir Ihnen sehr gern zur Verfügung. Sie erreichen uns in Neumünster unter 04321.853 88 81 auch nach 18.00 Uhr und am Samstag. Bitte beachten Sie, daß wir ausschließlich Anfragen unter Angabe der vollständigen Infrastruktur bearbeiten: Vorname, Nachname, Rufnummer, Anschrift, E-Mailadresse.
Ein Energieausweis befindet sich in der Erstellung.
Ausstattung
- Teeküche
- Abstellraum
Energiepass
- Energieausweis ist in Bearbeitung
Kontaktperson
- Anrede
- Herr
- Titel
- Ihre inhabergeführte Immobilienagentur
- Vorname
- Boris D.
- Name
- Weder
- Email Zentrale
- info@wfm-immo.com
- Email Direkt
- info@wfm-immo.com
- Telefon Zentrale
- 043218538881
- Telefon Durchwahl
- +49 4321 853 88 81
- Mobil
- +49 173 234 1572
- Feedback
- info@wfm-immo.com
- Webseite / URL
- https://www.wfm-immo.com
Immobiliendetails
- Objektnummer
- 822
- Vermarktung
- Kauf
- Objektart
- Sonstige
Flächen
- Nutzfläche
- 25,0 m²
- Grundstücksfläche
- 2.780,0 m²
- Gesamtfläche
- 386,0 m²
- Bürofläche
- 150,0 m²
- Lagerfläche
- 211,5 m²
- Gäste-WC
- 3,0
Zustand
- Baujahr
- 1995
- Zustand
- Gepflegt
